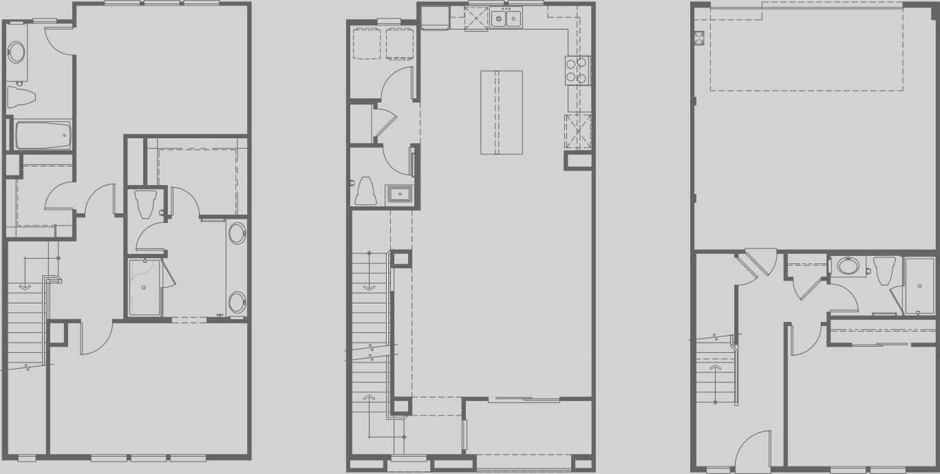
1,856 sf / 3 Bedrooms / 3.5 Baths / 2-Car Garage
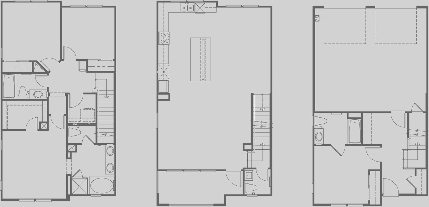
2,004 sf / 4 Bedrooms / 3.5 baths / 2-Car Garage

You may also like

Back to Top